Projekt-Beschreibung
Im Rahmen des geplanten Neubaus eines Straßenabschnittes in Mönchengladbach haben wir eine schalltechnische Untersuchung hinsichtlich der Bestimmung eines generellen Anspruchs auf Schallschutz gemäß 16. BImSchV (Verkehrslärmschutzverordnung) durchgeführt. Hierbei wurden ein lärmmindernder Farbahnbelag sowie Lichtsignalanlagen an allen Kreuzungen berücksichtigt.
Bearbeitet wurden folgende Punkte:
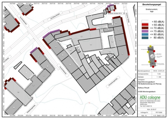
- Berechnung und flächige Darstellung der Beurteilungspegel gemäß RLS-90 innerhalb des Untersuchungsgebiet
- Punktuelle Berechnung der Beurteilungspegel gemäß RLS-90 für alle Gebäude und alle Geschosse innerhalb des Ausbaubereiches gemäß 16.BImSchV bzw. VLärmSchR97
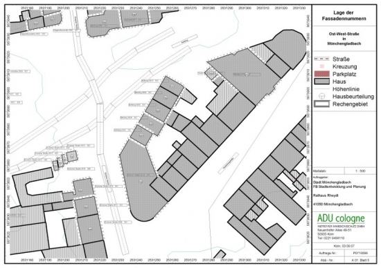
- Ermittlung und Darstellung der anspruchsberechtigten Fassadenbereiche gemäß 16.BImSchV bzw. VLärmSchR97
Die anschließende Ermittlung der anspruchsberechtigten Fassadenbereiche erfolgte in drei Schritten:
1: Ermittlung des erstattungsfähigen Bereiches
2: Ermittlung der Immissionspegel (ungerundeter Beurteilungspegel) an den Fassaden der einzelnen Gebäude innerhalb des erstattungsfähigen Bereiches in Form von punktuellen Berechnungen sowie Kennzeichnung der jeweils anspruchsberechtigten Fassadenbereiche
3: Darstellung der anspruchsberechtigten Gebäude in Form farbiger Lärmkarten
Bei Bedarf schicken wir Ihnen gerne eine ausführlichere Auflistung weiterer bearbeiteter Projekte aus diesem Leistungsbereich zu.
Bildquelle: Pixelio.de - A. Neumann, Abbildungen - ADU cologne




