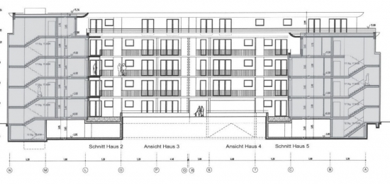
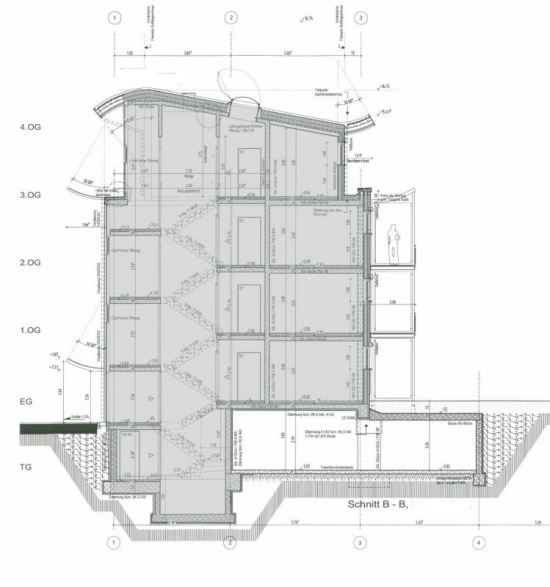
Projekt-Beschreibung
Im Rahmen des Neubaus eines Wohngebäudes in Köln wurde unser Büro damit beauftragt, den entsprechenden Nachweis des energiesparenden Wärmeschutzes gemäß der EnEV 2004 und der zugehörigen allgemeinen Verwaltungsvorschriften zu führen.
Hierbei konnte mittels spezieller Software (Bautherm ENEV X) nachgewiesen werden, dass mit den geplanten oder vorgeschlagenen Baustoffen und Konstruktionen sowie mit der geplanten Anlagentechnik die Höchstwerte für den Primärenergiebedarf nach EnEV für zu errichtende Gebäude mit normalen Innentemperaturen nach Anhang 1 und die Mindestanforderungen der DIN 4108- 2 eingehalten werden. Auf Grundlage der Ergebnisse wurde ein entsprechender Energieausweis für das Gebäude erstellt.
Darüber hinaus wurde überprüft, inwieweit mit der vorgelegten Planung die Einhaltung der Mindestanforderungen an den baulichen Schallschutz nach DIN 4109 gewährleistet ist.
Bei Bedarf schicken wir Ihnen gerne eine ausführlichere Auflistung weiterer bearbeiteter Projekte aus diesem Leistungsbereich zu.
Bildquelle: Pixelio.de - T. Kemnitz, Abbildungen - ADU cologne


